インスタベース
デイユースホテル
東京都
台東区
🛌鶯谷駅
貸スペース谷中にゃんとも レンタルスペース、レンタルサロン
写真一覧
スペース情報
1,430円〜2,420円
/時間
物販はもちろん、ワークショップ、施術、占い、作業など多...
東京メトロ千代田線 千駄木駅 徒歩5分
60分~
〜10名
18
貸スペース谷中にゃんとも レンタルスペース、レンタルサロンの写真一覧
写真をクリックすると拡大して表示されます。
スペース内
設備・備品・オプション
スペース入り口
施設の外観
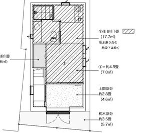
間取り図