インスタベース
レンタルスペース
北海道
札幌市
札幌市南区
🛋️真駒内駅
定山渓椿 椿邸・TSUBAKI-Tei
写真一覧
スペース情報
55,000円
/時間
定山渓椿邸/貸切/母屋+はなれ4棟/温泉/露天/サウナ...
JR千歳線 札幌駅 バス45分 (バス停:白糸の滝)
60分~
〜20名
定山渓椿 椿邸・TSUBAKI-Teiの写真一覧
写真をクリックすると拡大して表示されます。
スペース内
設備・備品・オプション
スペース入り口
施設の外観
その他
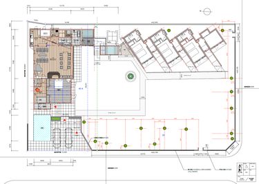
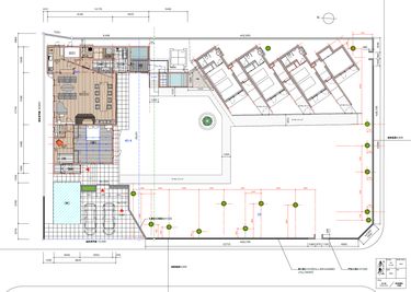
間取り図